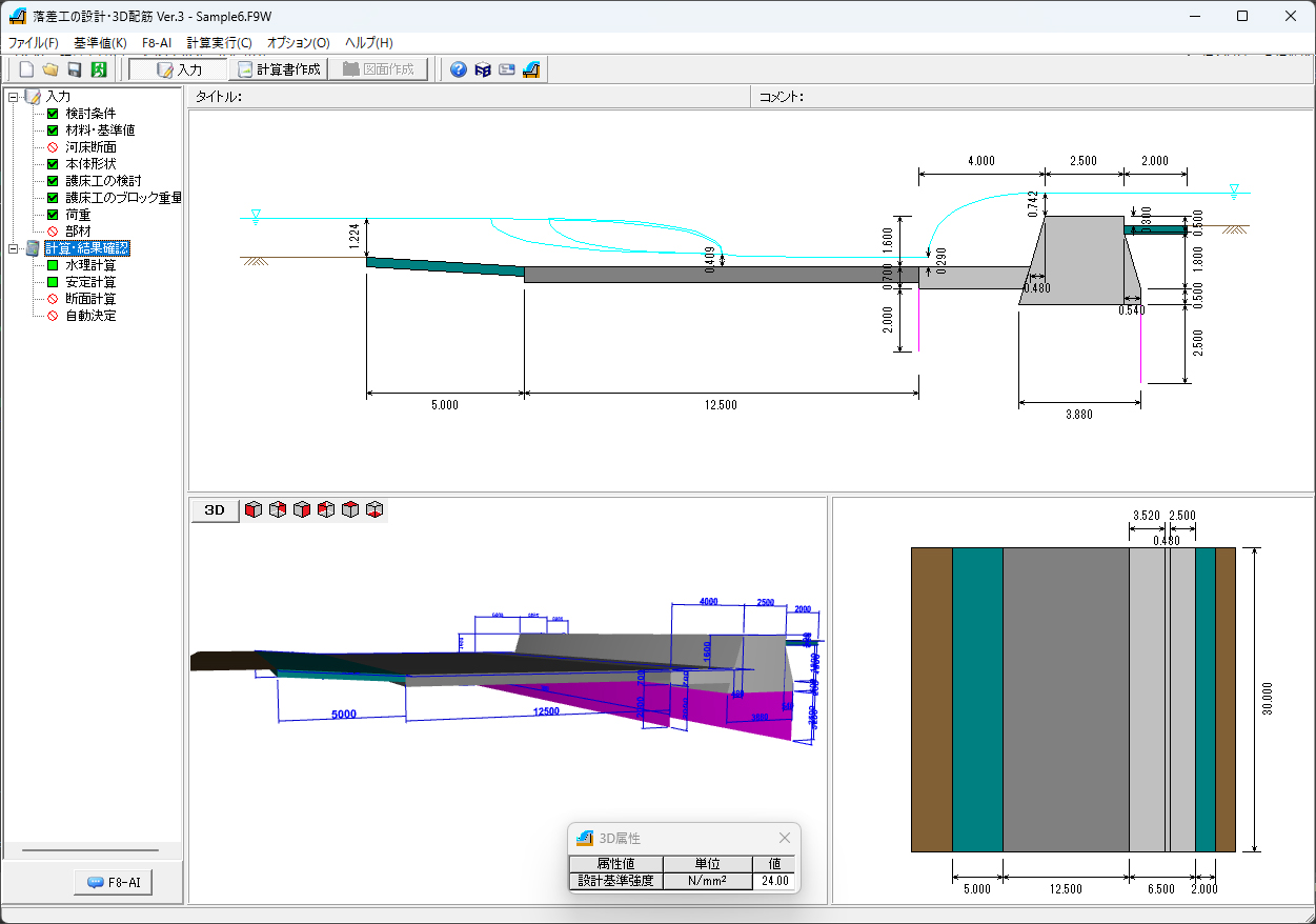
プログラム概要
「床止めの構造設計手引き(財)国土技術研究センター 編」等に従い、直壁型及び緩傾斜型の落差工の設計計算及び図面作成を行うプログラムです。
護床工の設計については、上記文献と「土地改良事業計画設計基準設計「頭首工」 令和6年3月 農林水産省」から選択可能です。
直壁型(本体・水叩き一体式構造、分離式構造)および緩傾斜型の形状タイプについて対応しています。
水理計算は、実流量か単位幅流量で行うかを選択できます。
実流量で計算する場合には、各断面位置(上流部、中流部、下流部)ごとに使用する平均流速公式の設定が可能です。
安定計算は、直接基礎(転倒・滑動・地盤支持力)、杭基礎(鉛直支持力・水平変位・杭体の断面計算)について照査を行います。
また、直壁型(一体式構造)で鉄筋コンクリート部材の場合は、本体と水叩き部について、断面計算(曲げ応力度、せん断応力度)を行うことが可能です。
※杭基礎の検討には別売の基礎製品との連動が必要です。
Ver.3.0.0 改定内容<2026年 3月 30日リリース>NEW
- 直壁型分離式構造の形状拡張(分離面勾配、段差)
- 照査内容の選択に対応
- F8-AI UCサポート機能
詳しくは、フォーラムエイトのウェブサイトで。
(Visited 1 times, 1 visits today)







